Osiedle domów jednorodzinnych
DOMY PREMIUM

Znajdź swoje miejsce na ziemi w jednym z domów z naszej oferty
Zapraszamy do zapoznania się z ofertą domów jednorodzinnych na nowym osiedlu w Przasnyszu. Jest to jedyna taka inwestycja w Przasnyszu, gdzie znajdziecie Państwo dużą powierzchnię domu i działki w tak atrakcyjnej cenie!

Cała inwestycja obejmować będzie wybudowanie osiedla domów mieszkalnych jednorodzinnych w zabudowie bliźniaczej. Niewątpliwym atutem inwestycji jest doskonała lokalizacja - z jednej strony blisko sklepów, szkoły, przedszkola, z drugiej strony z dala od zgiełku.

Otwarta przestrzeń na parterze, wygodne pokoje, garaż, przestronna działka i spokojny krajobraz sprawiają, że nowopowstające osiedle jest wręcz idealnym miejscem do życia!

Poznaj naszą ofertę nowoczesnego osiedla domków jednorodzinnych

Domy premium z dużym ogrodem ul. Malownicza Przasnysz

Powierzchnia użytkowa domu: 143,23 m2
Powierzchnia całkowita domu: 189,30 m2
Powierzchnia działki: ok. 500 m2
Do każdego budynku wchodzi się przez wiatrołap. Na parterze znajduje się przestronny salon z jadalnią, kuchnia, toaleta oraz garaż. Na ogród można wyjść przez duże przeszklone przejście z salonu. Na piętrze są cztery sypialnie, łazienka oraz komunikacja. Domy będą posadowione na działkach o dużej powierzchni, gdzie z powodzeniem można zaaranżować ogród.
Prospekt informacyjny dotyczący aktualnej inwestycji znajdziesz tutaj.
Więcej

I ETAP

Każdy z domów ma 143,23 m2 powierzchni użytkowej. Powierzchnia parteru wynosi 68,62 m², a piętra 74,61 m².

Zestawienie powierzchni - parter:
1. wiatrołap 4,52 m2
2. kuchnia 6,68 m2
3. pokój dzienny z jadalnią 36,81 m2
4. toaleta 1,83 m2
5. garaż jednostanowiskowy 18,77 m2
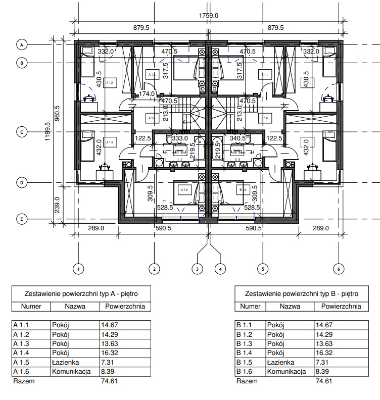
Zestawienie powierzchni - piętro:
6. pokój 14,67 m2
7. pokój 14,29 m2
8. pokój 13,63 m2
9. pokój 16,32 m2
10. łazienka 7,31 m2
11. korytarz 8,39 m2
Numer domu
Powierzchnia użytkowa [m2]
Powierzchnia działki [m2]
Cena m2 powierzchni użytkowej[zł]
Cena brutto [zł]
Rzut parteru
Rzut piętra
Status
1A
143,23
ok 500
5 236,33
750 000,00
Sprzedany
1B
143,23
ok 500
5 236,33
750 000,00
Sprzedany
1C
143,23
ok 500
5 236,33
750 000,00
Rezerwacja
1D
143,23
ok 500
5 375,96
770 000,00
Rezerwacja

Wizualizacja budynków

KIM JESTEŚMY? DLACZEGO WARTO NAM ZAUFAĆ?

Jesteśmy firmą zajmującą się rynkiem nieruchomości już od 2011 roku. Najwięcej naszych inwestycji powstaje w Legionowie i okolicach, a od 2022 roku budujemy także w Przasnyszu.

Lokalizacja osiedla Domy Premium w Przasnyszu

Pozostańmy w kontakcie

Biuro Perfect-Fach
ul. Witolda Pileckiego 12, 06-300 Przasnysz
ul. Ciechanowska 28, 06-300 Przasnysz
Tomasz - 
519 637 488
Justyna - 507 780 311
Cezary - 798 877 015

    linkedin facebook pinterest youtube rss twitter instagram facebook-blank rss-blank linkedin-blank pinterest youtube twitter instagram